Rehabilitación de Casa Canaria para comercio

Situación: C/ San Juan 5, La Laguna, Tenerife.
Proyecto: 2005
Terminación: 2008
Superficie: 513,39 m2
Promotor: 


MEMORIA 
La casa está situada muy próxima a la Catedral, en la calle San Juan, nº5, en el casco histórico de San Cristóbal de La Laguna, declarado Patrimonio de la Humanidad por la UNESCO en 1999.
Se trata de la Rehabilitación de una casa para adaptarla a pequeño comercio. Actualmente está en estado de abandono y en progresivo deterioro, estando zonas ya en ruina.


Estado original.
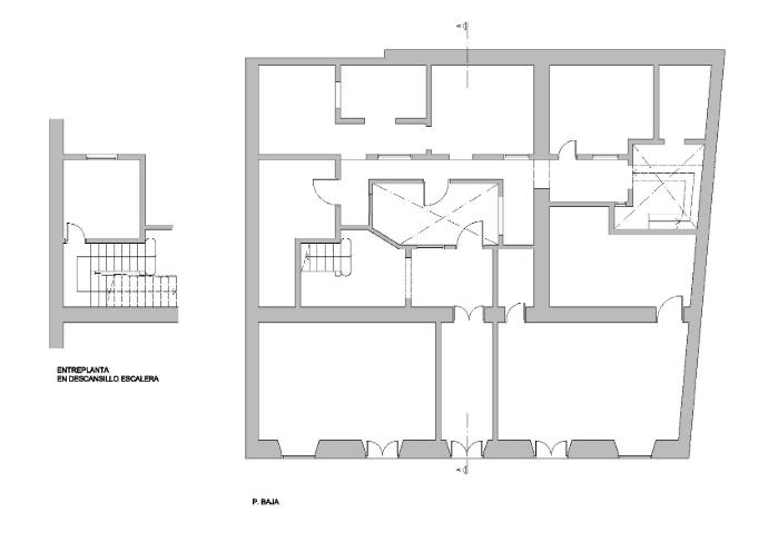
El edificio tiene dos plantas de altura excepto en el ala izquierda que tiene tres plantas debido a una ampliación.
La planta primitiva posiblemente estaba dispuesta en forma de “L” con un único patio al que se le fueron añadiendo cuerpos adosados y un segundo patio para ventilaciones de las nuevas estancias. El patio central ha sido modificado respecto al original, con tabiquerías y ventanas de aluminio. Pero la modificación más notable, precisamente por carecer de valor alguno, es la efectuada en altura y en el ala más antigua que abarca la escalera, en la cual se levantó en su día una planta nueva con cubierta plana y de hormigón a la cual se accede mediante una escalera de caracol metálica. Ésta nueva planta será demolida para recuperar la cubierta inclinada.
El sistema constructivo es el tradicional de la Arquitectura Canaria de finales del siglo XVIII, muros de carga de piedra y barro, techos de vigas de madera de tea y entarimado, los techos de la primera crujía de la planta primera formados por cubierta a dos aguas de par e hilera de madera. La cubierta de la segunda planta está muy deteriorada y en gran parte se ha desplomado.
La fachada está formada por cinco huecos por planta. Todos los huecos tienen el mismo ancho. En la planta baja, la puerta central era la principal de la casa, a través de la cual se accede a un zaguán o vestíbulo. Los dos huecos laterales corresponden a las puertas de los locales que actualmente están en uso y los dos huecos extremos son los escaparates de éstos locales. En la planta primera, se disponen unas ventanas de guillotina con metopas y postigos interiores. Ninguno de estos huecos posee balcón, indicios de una casa modesta de la época.
  
El patio central actualmente no tiene ningún valor arquitectónico, ya que ha sido modificado totalmente, sus muros y huecos, incluso añadiendo carpinterías de aluminio.
El segundo patio es más pequeño que el anterior y está prácticamente ocupado por una escalera estrecha en forma de “U” de hormigón. Obviamente estamos ante otra intervención muy posterior a la época de la casa y que no tiene ningún valor arquitectónico.
 

Propuesta.
Al tratarse de la rehabilitación de una Casa para el uso de comercio, se han tenido en cuenta dos aspectos fundamentales, la estructura portante del edificio y que los espacios sean lo más diáfanos posibles para el nuevo uso requerido. A continuación se indican los puntos más importantes que se han tratado en el proyecto para dicha intervención:
  • Conservación de la primera crujía a la calle y del ala izquierda de la casa, reparando y reforzando los forjados existentes de madera, elementos indispensables para realizar el cambio de uso de vivienda a local comercial.
  • Demolición del cuadrante derecho y fondo para una nueva construcción, integrada ésta con las zonas a conservar.
  • Demolición del cuerpo añadido de la última planta y recuperación de la cubierta inclinada.
  • Recuperación de la tipología de patio central, mediante elementos y materiales nuevos como el acero y el vidrio, de manera que exista una conexión visual entre las dos plantas.
  • Por motivos de seguridad en la evacuación contra incendios, se sitúa al fondo y a la derecha un nuevo núcleo de comunicaciones vertical, formado por una escalera en “L” y un ascensor con cerramiento de vidrio transparente y acero.

ESTADO ORIGINAL
REHABILITACIÓN​
Compartir
Archivar