Rehabilitación de casa Canaria para comercial y vivienda

Situación: C/ San Antonio esquina C/ Maya, La Laguna, Tenerife.
Arquitecto: José Ramón Rodríguez Fernández
Proyecto: 2008
Terminación: 2010
Superficie: 226,71 m2
Promotor: Privado


La casa se sitúa en el Casco Histórico de San Cristóbal de La Laguna, declarado Patrimonio de la Humanidad por la UNESCO en 1999.
Se trata de una Casa Canaria con tipología de la arquitectura doméstica urbana. Casa de una planta de altura, con un patio interior en la parte trasera.
Es una casa sencilla de corte modesto, posiblemente de finales del siglo XVIII.
La composición de las fachadas es: en la calle San Antonio, dos puertas de acceso y una ventana alineadas todas ellas por la parte superior y en la calle Maya, se compone de tres ventanas ordenadas y alineadas con las de la fachada de San Antonio y es su limite con la medianería colindante, una puerta de garaje metálica suplantando una posible puerta o ventana antigua.
                                               ​    
La planta primitiva estaba dispuesta en forma de “U” con un único patio central, incluyendo también la actual casa colindante de la calle San Antonio.
En general la vivienda se encuentra en un estado de conservación bastante degradado, con un bajo mantenimiento.
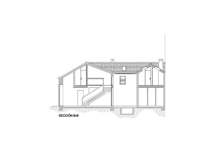
El sistema constructivo es el tradicional de la Arquitectura Canaria. Muros de carga de piedra y barro, techos de vigas de madera de tea, los techos formados por cubierta a dos aguas de par e hilera de madera que soportan la teja cerámica curva, falseado en su interior con un falso techo de cañas y yeso dándole un aspecto de cubierta plana en su interior.
            ​                      
En cuanto a huecos, se pretende homogeneizar y dar un orden claro a los huecos de fachadas, eliminando la puerta metálica del garaje, recuperando su estructura inicial de composición.
Las ventanas son de tipo abatibles y postigos interiores.
              ​              
La fachada está rematada en su parte superior con un alero prolongación de la cubierta, formado por doble hilera de teja.
El revestimiento de la fachada es de revoco de color amarillo, salvo en el zócalo que es de color gris. Carece de elementos de cantería.
El patio no tiene gran valor arquitectónico, cuya función únicamente es la de suministrar luz a las dependencias próximas y al pasillo de la vivienda.
                                            ​       
El proyecto de rehabilitación pretende recuperar la cubierta tradicional canaria de teja, así como la configuración del patio interior de la misma. Se conserva todo el muro de fachada, altura de cornisa, espesores, huecos, etc. sin embargo, el mayor logro es haber conseguido ubicar una vivienda bajo cubierta. Por fuera, la casa sigue siendo de una planta, pero en su interior alberga dos plantas.

ESTADO ORIGINAL

REHABILITACIÓN
Compartir
Archivar