Situación: C/ Anchieta, 60, La Laguna, Tenerife
Proyecto: 2007
Terminación: 2011
Superficie: 881,45 m2.
Promotor: MAYIRA, S. L.
Publicaciones:
Plataforma Arquitectura.
Arch daily.
Arquimaster.
La casa se sitúa en el Casco Histórico de San Cristóbal de La Laguna, en la isla de Tenerife, declarado Patrimonio de la Humanidad por la UNESCO en 1999.
El solar tiene una superficie de 465,27 m². El edificio es una Casa Canaria con tipología de la arquitectura doméstica urbana, de corte modesto pero de interés en el conjunto urbano. Fue en un periodo cuartel de la Guardia Civil.
La composición de la fachada es casi simétrica, con ventanas ordenadas, la relación macizo hueco y el tipo de cubierta inclinada nos hace pensar en un edificio de finales del siglo XVIII.
El sistema constructivo es el tradicional de la Arquitectura Canaria. Muros de carga de piedra y barro, techos y entarimados de madera de tea, los techos de la primera crujía de la planta primera formados por cubierta a cuatro aguas de par e hilera soportan la teja cerámica curva.
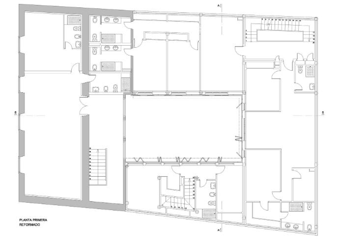
Tiene dos plantas de altura con patio trasero que se utilizaba como aparcamiento de coches. La planta primitiva estaba dispuesta en forma de “U” con un único patio central. Antes de la intervención sólo existía la crujía de la calle y el ala derecha que estaba en estado ruinoso. Para facilitar el aparcamiento, la planta baja de éste ala tenía una estructura metálica soportando la planta primera. El ala izquierda había desaparecido, si bien se nota la huella de su pasado. También ha desaparecido el zaguán o portal, que en estas casas había tras la puerta de entrada, utilizando el espacio como zona paso de los coches hacia el patio.
El proyecto pretende recuperar dos piezas fundamentales en este tipo de arquitectura, el zaguán y el patio.
En planta baja se encuentra el portal del edificio, el cual hace de primer distribuidor comunicando con dos de las viviendas y con el patio. En el patio está el acceso a la vivienda que se desarrolla en duplex, atravesando el patio, se accede a un núcleo de comunicación donde se encuentra la escalera de nueva planta que relaciona la planta sótano, donde están los trasteros, la planta primera de viviendas y la cubierta.
El material predominante en la zona a rehabilitar es la madera, se ha recuperado toda aquella que estaba en buen estado. Las cubiertas inclinadas se desmontaron completamente para su restauración.
Siguiendo indicaciones de la oficina del Plan Especial de Protección del Conjunto Histórico de La laguna, se proyecta un patio de dimensiones 10,30 x 6,00 metros, para completar y cerrar el patio, se utilizan fachadas de hormigón visto y para las persianas de las ventanas se utilizan paneles fenólicos perforados haciendo una referencia a las celosías de los conventos de clausura que existen en La Laguna.
ESTADO ORIGINAL
REHABILITACIÓN
PROCESO CONSTRUCTIVO




















