Rehabilitación de Casa Canaria en Granadilla

Situación: C/ Arquitecto Marrero, nº 18, Granadilla de Abona, Tenerife.
Proyecto: 2010
Terminación: 2012
Superficie: 305,90 m2
Promotor: Privado.
Publicaciones:
Plataforma Arquitectura.
SOLOARQUITECTURA.
ARQUIMASTER.


La presente intervención corresponde a una Casa Canaria entre medianeras, con tipología de la arquitectura doméstica urbana. Es una casa sencilla de corte modesto enclavada dentro del Plan Especial de Protección y Reforma Interior del Casco Histórico de Granadilla de Abona, en la isla de Tenerife.

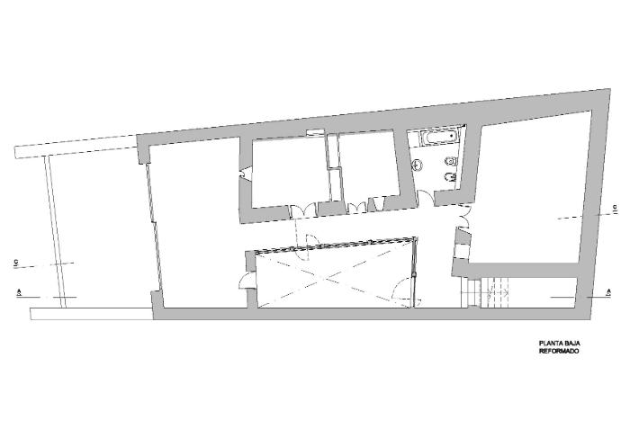
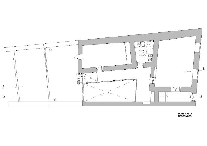
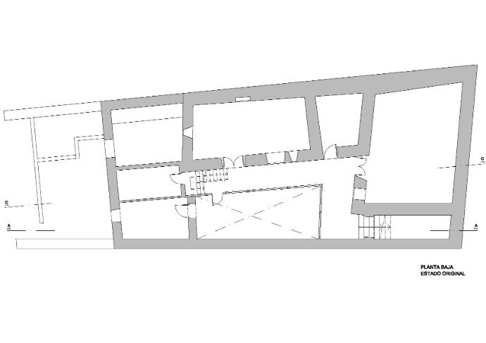
La casa se organiza alrededor de un patio medianero, generando una vivienda en “U”. Tiene dos plantas de altura, la planta alta corresponde con la cota de la calle y en ella se ubica el salón, el dormitorio principal y un baño. La planta baja corresponde al nivel de la huerta trasera donde se ubica la cocina – comedor, dos dormitorios, un baño y una bodega.

Posee dos fachadas, una a la calle Arquitecto Marrero (fachada noreste) y otra hacia la huerta trasera (fachada suroeste).

La fachada de la calle Arquitecto Marrero, se compone de una puerta de acceso y dos ventanas de guillotina. Casi con toda certeza, esta casa era parte de la que linda por su parte izquierda, ya que hay evidencias de ello al tener en el patio huecos compartidos, actualmente tapiados, apreciándose también que la puerta de acceso, corresponde al otro edificio y que en algún momento de la historia, la casa se dividió, quedando en la situación actual.

El objetivo principal del proyecto era dotar a la casa de las condiciones de habitabilidad necesarias para el uso de vivienda y la conservación del patio interior.

El material predominante es la madera y se ha recuperado toda aquella que estaba en buen estado. Las cubiertas inclinadas que estaban muy deterioradas, se tuvieron que hacer nuevas con las mismas pendientes y alturas que la original aprovechando para colocar aislamiento térmico y acústico. En el patio se mantuvieron los pies derechos de madera y se acristaló entre ellos, para conseguir mayor luminosidad en la casa e integrar el patio a la misma. La escalera interior de madera que era muy estrecha, se eliminó, creando un doble espacio entre el corredor de la planta baja y la planta alta, consiguiendo una mayor limpieza espacial y visual.

Estado Original:

Estado Reformado:

Antes y después:


Compartir
Archivar