Situación: C/ Herradores 46, La Laguna, Tenerife.
Arquitecto: José Ramón Rodríguez Fernández
Proyecto: 2004
Terminación: 2009
Superficie: 1.745,60 m2
Promotor: Privado
Publicaciones:
SOLOARQUITECTURA
ARQUIMASTER
Memoria
La casa está situada muy próxima a la Catedral, en la calle Herradores, nº46, en el Casco Histórico de San Cristóbal de La Laguna, declarado Patrimonio de la Humanidad por la UNESCO en 1999.
Se trata de la rehabilitación y ampliación de una casona tradicional Canaria denominada Casa Izquierdo, que data de finales del siglo XVIII o primera mitad del XIX, con uso residencial en su momento y que actualmente tiene un uso comercial. A lo largo del tiempo se han realizado intervenciones con el fin de adaptarlo a las necesidades del uso comercial.
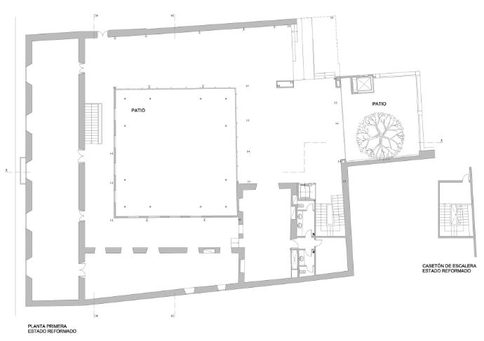
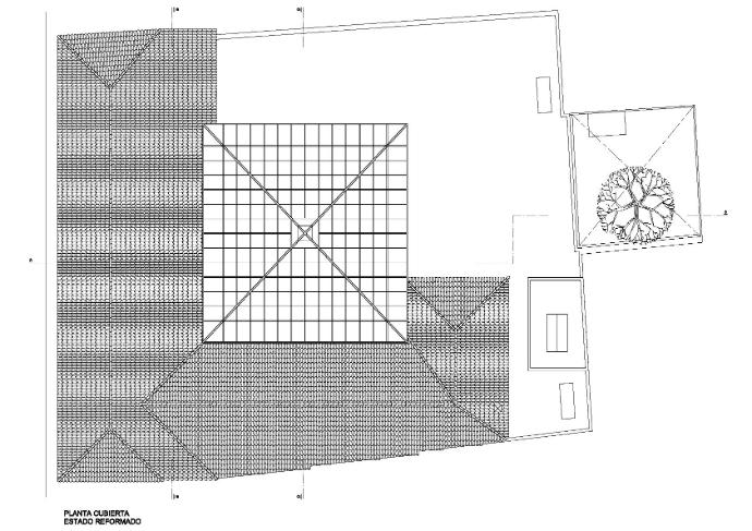
El solar tiene una superficie de 1.044,70 m2. La casa se desarrolla como edificación cerrada y está formada por varios cuerpos en una y dos alturas, alrededor de dos patios interiores con un frente a la calle Herradores de 30,18 metros. El sistema constructivo es el tradicional de la época, realizado con muros de carga de piedra y barro, pisos y techos de madera. La cubierta es inclinada en gran parte de la casa, terminada con teja cerámica
Con el proyecto se realiza una intervención integral del edificio cuyas actuaciones más importantes son las siguientes:
Demolición de los cuerpos que invaden el patio central para dejarlo limpio.
Construcción de una segunda planta en el ala Oeste para completar el patio, creando una fachada acristalada.
Creación de un cuerpo nuevo encima del segundo patio para cerrar completamente el gran patio central. Este cuerpo es diáfano y está comunicado visualmente mediante fachadas de vidrio con un tercer patio donde existe actualmente un drago y que pertenece al mismo propietario.
El patio central, se cubre con una estructura metálica acristalada a modo de gran lucernario, de este modo se protege de las inclemencias del tiempo y se puede dar uso a este espacio.
En las zonas a rehabilitar se pretende que los espacios sean lo más diáfanos posibles, con el fin de favorecer el uso comercial, manteniendo las fachadas existentes y eliminando en lo posible la tabiquería intermedia.
Las cubiertas nuevas son planas para diferenciarlas de las inclinadas del edificio primitivo.
ESTADO INICIAL
ESTADO REFORMADO























