Situación: El Porís de Abona. T.M de Arico
Arquitectos: José Ramón Rodríguez Fernández + Anatael N. Alayón Hernández
Proyecto: 2016
Terminación: 2020
Superficie construida: 313,97 m²
Promotor: Privado.
La edificación existente consiste en una casa terrera del año 1920. La cubierta es plana no transitable. Cuenta con una terraza delantera hacia el mar y un patio trasero murado con dos almacenes.
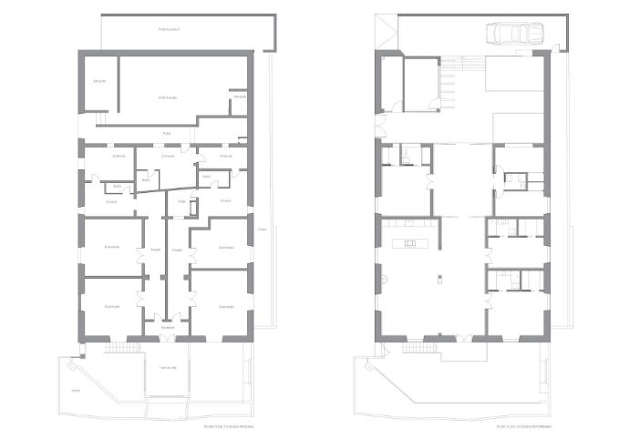
Después del análisis de la edificación, se puede decir, que la configuración original de la casa correspondía a una planta cuadrangular organizada en torno al pasillo central en tres crujías perfectamente diferenciadas, con dos estancias a cada lado del pasillo. Adosada a esa estructura cuadrangular se acometió una ampliación consistente en dos nuevos módulos contiguos a las crujías exteriores del conjunto, de modo que el elemento central (continuación del pasillo) pasó a convertirse en un patio.
Con el paso del tiempo esta configuración original fue quedando desvirtuada con sucesivas ampliaciones y reformas que atendían sobre todo a motivaciones o finalidades particulares, como por ejemplo el dividir la casa a la mitad para configurar dos viviendas separadas por un tabique divisorio. En ese proceso se perdió la configuración del patio original que fue techado y dividido en diferentes estancias o recintos.
El proyecto contó con las siguientes fases o intervenciones:
1. Actuaciones para llevar a estado de consolidación la edificación
Demoliciones de elementos posteriores a 1956
Reconstrucción de elementos anteriores a 1956 posteriormente modificados
2. Obras de consolidación
Sustitución de elementos estructurales en mal estado
Renovación estructura de cubierta
3. Obras de rehabilitación
Adaptación para cumplir normativas de obligado cumplimiento
Modernización de instalaciones
Redistribución de los espacios para mejorar condiciones de habitabilidad
4. Obras de remodelación
Cambio de huecos de fachada
Modificación de los parámetros de altura, ocupación y volumen
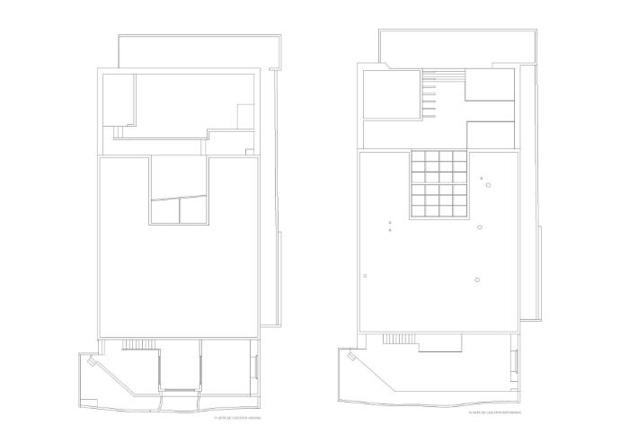
PLANOS ESTADO ORIGINAL Y REFORMADO
REFORMADO
ANTES Y DESPUÉS





















