Reforma del Hotel Atlantis-Beatriz****

Situación: Avda. Venezuela, Puerto de la Cruz, Tenerife
Arquitecto: José Ramón Rodríguez Fernández
Proyecto: 2007
Terminación: 2009
Superficie: 16.783,95 m2
Cliente: Hotel Beatriz


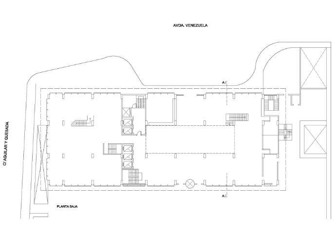
Esta intervención desarrolla la reforma de un edificio destinado a hotel con categoría cuatro estrellas, de forma rectangular en su planta tipo, cuenta con dos plantas de sótano, planta baja, entreplanta y primera, y doce plantas de habitaciones, la planta trece con el vaso de la piscina, terrazas cuatro habitaciones y una suite, y la planta catorce donde se ubica la piscina de la cubierta y solárium. La reforma consiste básicamente en los siguientes aspectos formales:
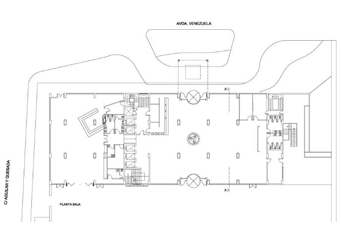
La planta baja que se destina a las oficinas, hall, recepción y cafetería, se redistribuye suprimiendo los despachos, los cuales pasan a la entreplanta.
Parte de la entreplanta, que tiene en la actualidad un doble espacio a la recepción, se demuele para dar amplitud y esbeltez al vestíbulo de entrada, al otro lado del núcleo de ascensores se ubicaran las nuevas oficinas.
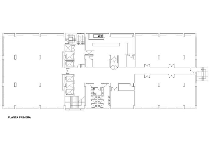
La planta primera que en la actualidad dispone de un salón y 18 habitaciones, se transforma en salones para convenciones, divididos con paneles móviles para dar flexibilidad a los espacios.
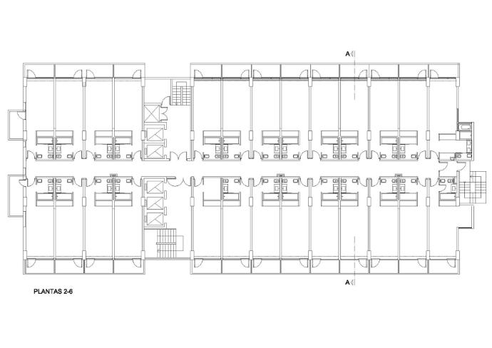
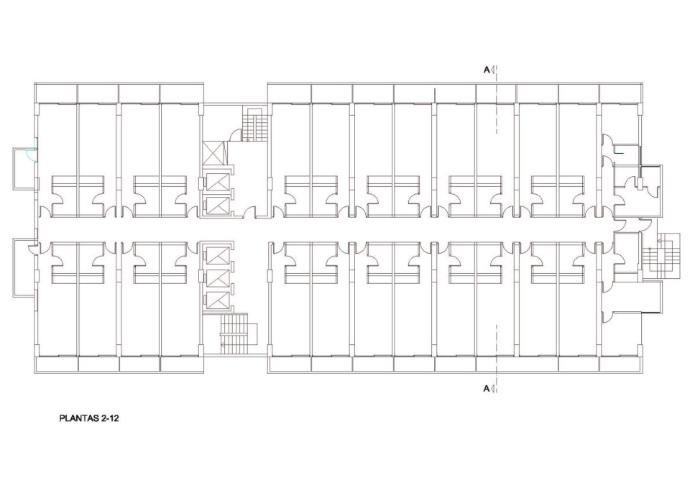
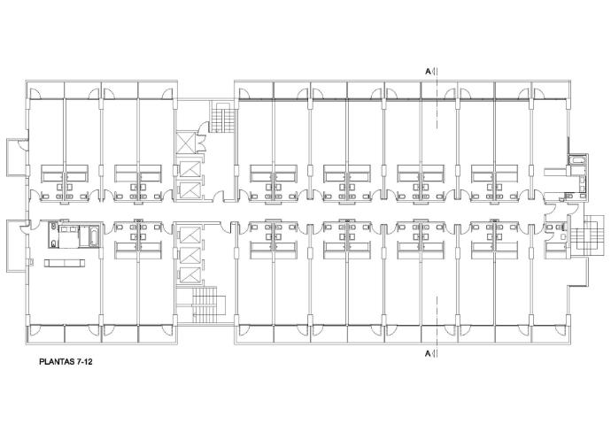
De las plantas 2 a 6 dos habitaciones situadas en la esquina Norte, se reconvierten en una sola habitación y de las plantas 7 a 12 en esa misma esquina se convierten tres habitaciones en una suit junior, el resto de habitaciones de esas plantas se reforman completamente.
La intervención en la planta trece consiste en transformar las cinco habitaciones que hay actualmente, en dos suites y la otra zona que ahora es terraza, se convierte en la zona de masajes y terapias del SPA. En la terraza descubierta de la planta catorce, se realiza una estructura de acero, la cual se acristala perimetralmente a modo de fachada y la piscina se transforma en un SPA.
La planta sótano -1 que esta a nivel de piscina y que actualmente se encuentra el restaurante, la cocina y la discoteca, se reforma recuperando la discoteca y parte del restaurante actual  para salón de celebraciones. Se reubican los baños y la cocina se mantiene en el mismo lugar.
Otro aspecto formal significativo es la remodelación de las fachadas.
ESTADO ORIGINAL
REFORMADO​
Compartir
Archivar