Inicio
Proyectos
Equipamiento
Residencial
rehabilitaciones
Sobre Nosotros
Contáctenos
Identificarse
Contáctenos
Open toolbar
Accessibility Tools
Increase Text
Decrease Text
Grayscale
High Contrast
Negative Contrast
Light Background
Links Underline
Readable Font
Reset
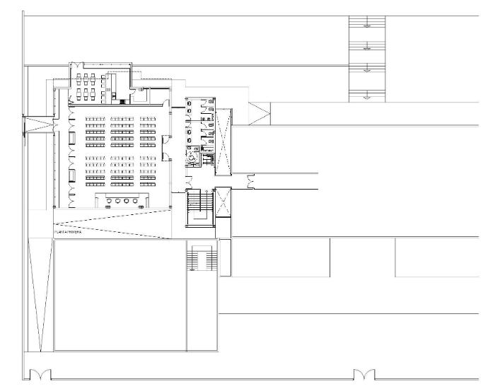
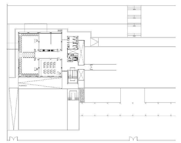
Ampliación Instituto de Enseñanza Secundaria – IES Los Cristianos
Todos los blogs
Equipamiento
Ampliación Instituto de Enseñanza Secundaria – IES Los Cristianos
Situación: C/ Portazgo s/n, Los Cristianos, T. M. de Arona, Tenerife.
Arquitecto: José Ramón Rodríguez Fernández
Arquitecto colaborador: Oliver Polegre Martín
Proyecto: 2010
Superficie: 1.191,66 m2
Promotor: CONSEJERÍA DE EDUCACIÓN, UNIVERSIDADES, CULTURA Y DEPORTES, DIRECCION GENERAL DE CENTROS E INFRAESTRUCTURA EDUCATIVA – GOBIERNO DE CANARIAS
en
Equipamiento
Compartir
Nuestros blogs
Rehabilitacion
Equipamiento
Residencial
Archivar
- Todas las fechas
marzo 2019
septiembre 2014
octubre 2010
septiembre 2009
mayo 2006
mayo 2004