Ampliación de 4 Aulas de Primaria y aseos. C.E.I.P. Juan García Pérez – Granadilla – Tenerife

Situación: C/ Juan XXXIII, s/n, San Isidro, T. M. de Granadilla de Abona, Tenerife.
Arquitecto: José Ramón Rodríguez Fernández
Arquitecto colaborador: Ernesto Sanz de Galdeano 
Proyecto: 2006
Superficie: 416,45 m2
Promotor: CONSEJERÍA DE EDUCACIÓN, CULTURA Y DEPORTES, DIRECCION GENERAL DE CENTROS E INFRAESTRUCTURA EDUCATIVA – GOBIERNO DE CANARIAS


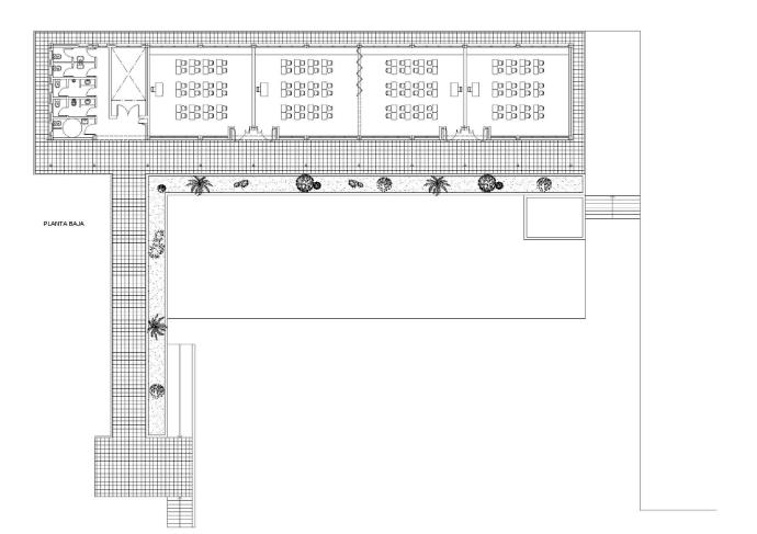
Se pretende realizar la construcción de un pequeño edificio que se implanta en uno de los jardines del Centro Educativo. Se destina a cuatro aulas de educación primaria con aseos en una sola planta, dos de las aulas están separadas mediante tabiques móviles con la posibilidad de unificarlas o separarlas según las necesidades. Dispone de un almacén, aseos para profesores y alumnos y aseo para discapacitados.

A todas las dependencias se accede mediante un pasillo cubierto, el cual tiene varias funciones, como son, servir de elemento de relación y transición entre las aulas y el patio, impedir el soleamiento en las ventanas de las aulas y proteger de la lluvia.
Compartir
Archivar