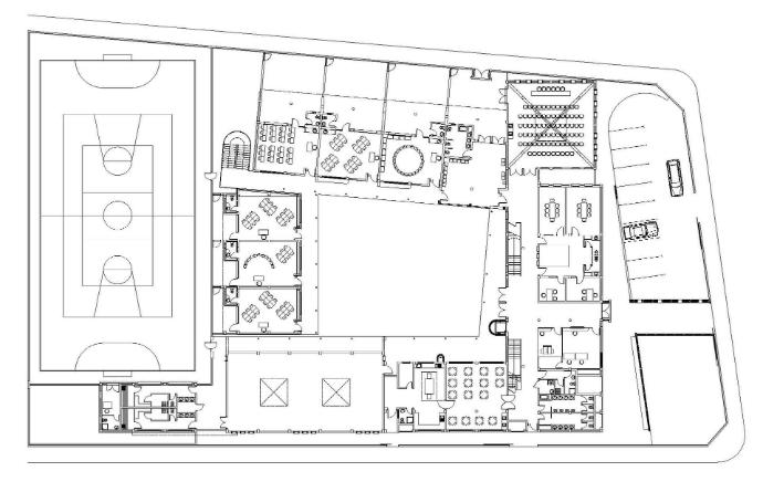
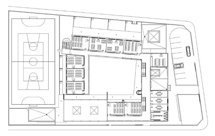
Ampliación de 3 Aulas de Infantil y 3 Aulas de Primaria. C.E.I.P El Puertito de Güimar.

Situación: C/ Almirante Churruca, nº 8, El Puertito de Güimar, T. M. de Güimar, Tenerife.
Arquitecto: José Ramón Rodríguez Fernández
Arquitecto colaborador: Ernesto Sanz de Galdeano 
Proyecto: 2006
Terminación: 2012
Superficie: 486,90 m2
Promotor: CONSEJERÍA DE EDUCACIÓN, CULTURA Y DEPORTES, DIRECCION GENERAL DE CENTROS E INFRAESTRUCTURA EDUCATIVA – GOBIERNO DE CANARIAS
Compartir
Archivar